果蔬保鮮冷庫
茶葉保鮮庫建造
鮮花保鮮庫
水產海鮮冷庫
大型冷庫設計 、大型冷庫工程建造
中大型冷庫工程建造
大型物流冷庫規劃建造
醫藥冷庫設計建造
速凍冷庫設計與建造
氣調庫設計建造
杭州小型冷庫安裝
食品冷庫建造安裝
雙溫冷藏庫安裝
藥品冷庫GSP驗證
酒店雙溫冷庫、食堂冷庫、餐飲雙溫冷庫設計造
聯系人:業務部 高經理
24小時咨詢:15355424256
電話:0571-87139668
傳真:0571-87139629
地址:杭州市上城區九和路九和人家3幢2樓
蕭山一醫藥冷庫建造安裝過程
醫藥冷庫安裝具體操作流程:
冷庫項目安裝具體操作五步曲:項目承包—項目設計—項目采購—項目施工—項目管理,下面庫華制冷為您詳細講解五步曲的具體細節。
庫華制冷項目承包:
分為五個小細節,從冷庫費用控制—冷庫進度控制—冷庫質量控制—冷庫合同管理—冷庫安裝人員組織與協調如下圖所示:
庫華制冷項目設計:
關于冷庫設計建造項目,您或許全部了解或許了解一部份,也許您正在找一家二家甚至更多的廠商聯系,聽到不同的方案和價格,把有限的時間花在眾多的電話郵件甚至會見約談過程中,庫華制冷提供的是一站式服務,只要告訴我們;
庫華:需建造冷庫的尺寸:長寬高單位米;
第二:需建造冷庫的存貨設計溫度:深度冷凍-25℃以下冷凍冷藏-18℃保鮮冷藏0℃保鮮2℃保鮮10℃;
第三:需建造冷庫的總存貨量:20噸50噸100噸500噸1000噸5000噸
第四:需建造冷庫的日出入貨量:占總庫2%5%8%10%20%
第五:需建造冷庫庫溫的庫華制冷小冷卻時間:6H8H10H12H24H
第六:需建造冷庫項目制冷機組的品牌廠家:艾默生谷輪德國比澤爾西克大連三洋(日本)法國美優樂法國泰康日本日立意大利富士豪美國開利意大利都靈
第七:需建造冷庫項目設備國產還是進口;
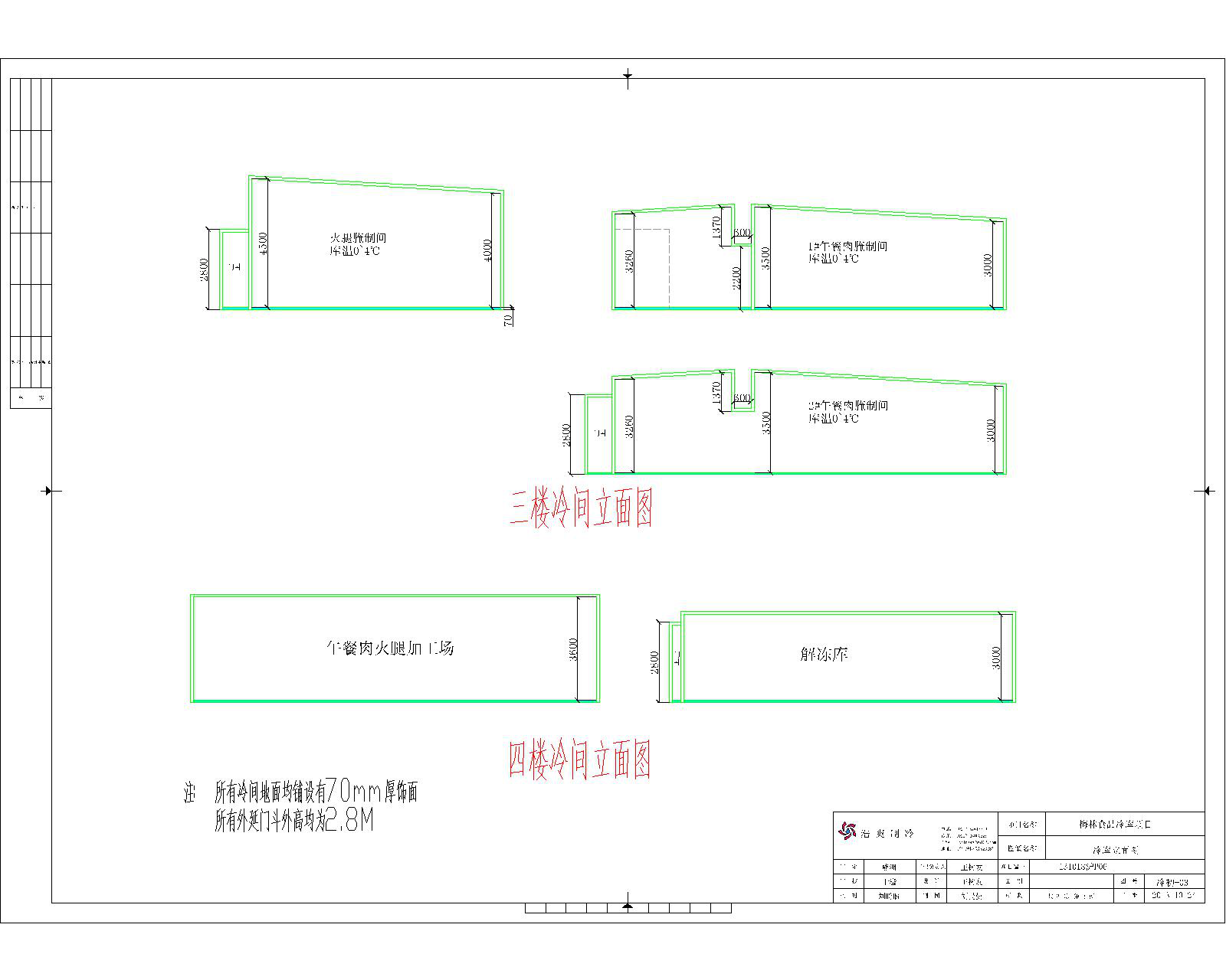
如圖所示:
此圖是庫華制冷給某醫藥冷庫項目設計的冷庫方案圖紙


庫華制冷項目采購:
庫華采購優勢:我們與國內外好的的制冷設備廠家有著深入的合作,引進優良的技術和產品,長期穩定的采購合作模式,使得我們更加有著優勢為客戶提供高性價比的產品。以庫華的品牌和平臺,一體式的集中采購甄選,在價格和設備質量問題上比客戶自身采購更加有著優勢。
1.供應商管理
庫華專業的設備工程人員,選配各種制冷設備,從眾多供應商中選擇適合客戶的產品,為客戶節省投資并達到項目的要求。庫華對供應商進行一一考核篩選,從產品質量、供應能力、售后服務、價格因素等方面綜合考慮我們的供應商團隊。
2.采購其管
項目合作簽約---制定采購計劃---供應商生產---品質管理---交期催貨---物流跟蹤---交付使用---售后服務。
如圖所示:
庫華制冷項目施工:
庫華一直以高效的團隊執行力引導企業正常發展,團隊分工分明,專人專職,愛崗敬業,全體員工認真在各自的崗位上,為整個庫華的發展,為每一個合作的項目,認真仔細,高效嚴格的默默貢獻著自已的力量,水滴成川洋之海,力集庫華而成果。庫華的發展,隨著中國經濟形式的逐步高漲而不斷飛躍前進。庫華的執行力量始終帶領著庫華的全體員工,向著美好的明天,不斷前進。
下面是我司庫華制冷給蕭山某醫藥冷庫現場安裝實例:
冷庫庫場,安裝師傅們準備卸貨
此醫藥冷庫建在一所商務寫字樓13層,由于電梯小的原因,辛苦冷庫安裝師傅們,將庫板一塊塊扛上樓去,
一部分庫板已到場地,可以慢慢拼裝;
平裝底板要注意地面平整,這非常關鍵,如有物品及雜質,需想法辦法處理,保持底板基本平整,平衡溝槽保持無雜質,拼裝墻板凹凸槽要吻合,用偏心鉤要鎖牢,用力適中,不宜過大;
冷庫墻板拼裝完成,準備裝頂板,在裝頂板的同時也是需要先打上發泡劑,以庫華冷庫的密封性,制冷效果好。
在拼裝每一塊冷庫板,都不可忽視細節,必須打上發泡劑;
頂板與墻板之間偏心鉤還是一樣要鎖牢,這樣庫板拼裝就基本完成;
制冷設備安裝:要輕輕放置,每個底腳螺絲也要擰牢固定住,

頂部線槽安裝應注意幾點:
線槽安裝保持橫平豎直,電纜線整齊放置線槽內,線頭不宜過多(方便后期維護檢查),其之間的縫系適中庫華制冷好,管卡固定要牢靠;
總結:安裝冷庫板時,嚴格按照圖紙施工,彈線要準,直。分清庫板凸凹面的走向。(不分凸凹面的話可能會導致門無法安裝)每塊板在拼裝前一定打滿發泡劑。發泡劑不能少打。每個偏心鉤用內六角固定,安裝時確保每個連接口牢固,縫隙不能過大,保持水平,不能出現歪斜。

掃一掃,關注庫華制冷新動態



浙公網安備 33010402001705號
